For Sale
407m2
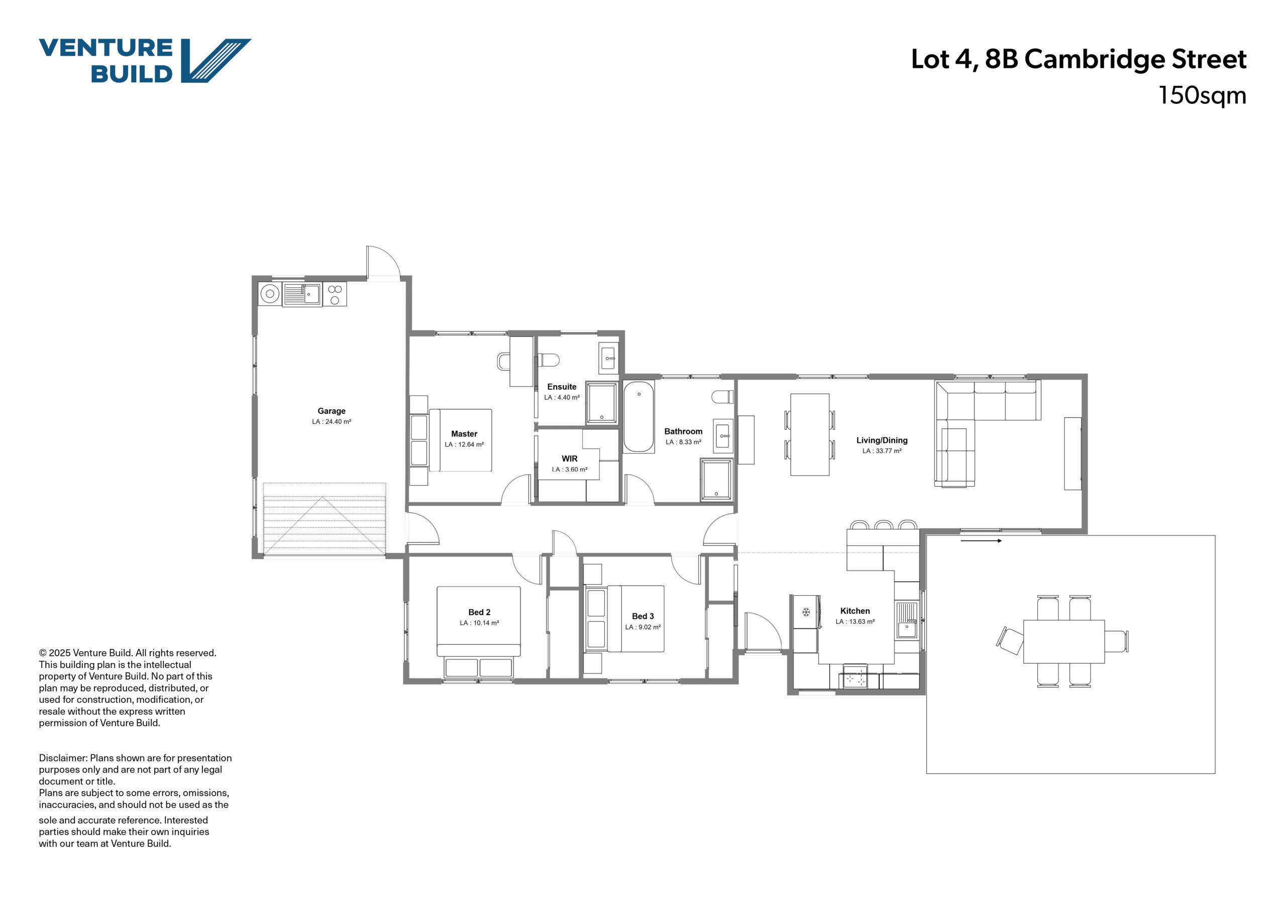
150m2
1
1
2
3
Ready to build your dream home? This 407sqm freehold section in a sought-after Gonville location offers the perfect opportunity to make it happen. The 150sqm new build design features three generous bedrooms, including a master suite with a walk-in wardrobe and ensuite.
Enjoy sun-filled open-plan living that flows effortlessly onto a spacious patio, perfect for entertaining family and friends. A secure single garage and off-street parking provide practicality, while the contemporary layout delivers easy modern living.
With plans ready to go, you can start building straight away, or collaborate with us to add your own personal touches and make this home truly yours.
House & Land Price: $749,000
Our Venture Build Price Promise means you get no nasty surprises when it comes to your build. The price listed includes the cost of kitchen appliances, bathroom hardware, tapware, carpet & vinyl, landscaping, driveways & paths, and fencing where applicable. We are your Whanganui New Home Builder.












